+ Lisa oma töö      

Otsid ehitajat "Eramu ehitus" valdkonnast?

Parima pakkumise ja teostaja leidmiseks lisa oma töö.

Juurdeehitus nagu paarismaja

ID 7508

5743 vaatamist

Prindi

  • check Pakkumiste tegemine
    kuni 07.05.2008
  • check Võitja valik kuni
    14.05.2008
  • 3 Töö teostamine
    ja hinnang
Hanke lõpp: K, 7. mai, 2008
Maakond: Harjumaa
Linn: Tallinn
Tööde algus: N, 15. mai, 2008 (Soovituslik)
Tööde lõpp: N, 14. mai, 2026 (Soovituslik)
Ehitusmaterjalid: Töö tegija poolt

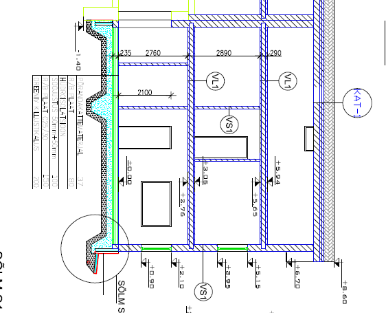
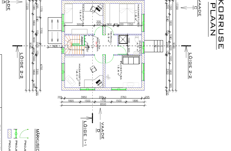
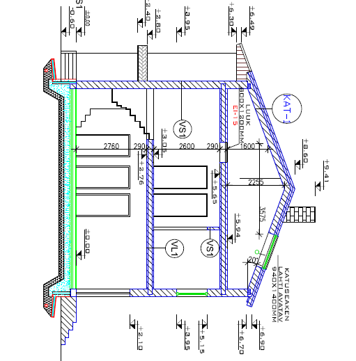
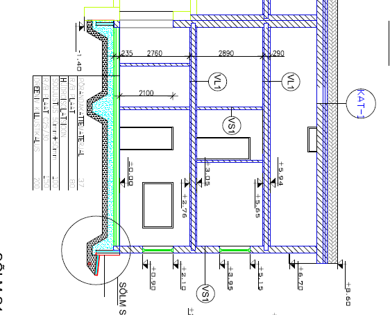
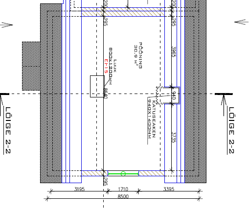
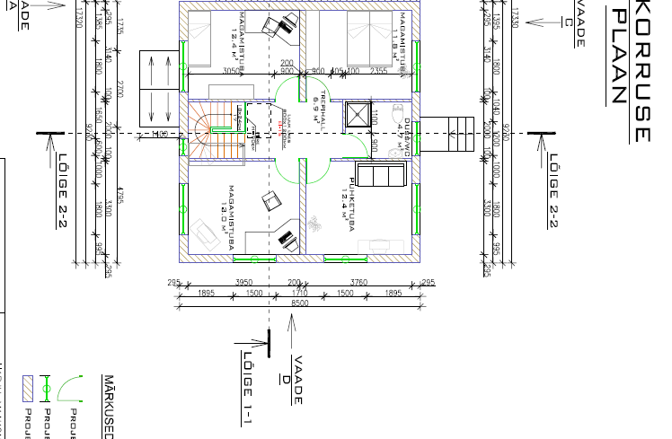
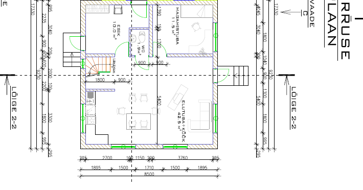
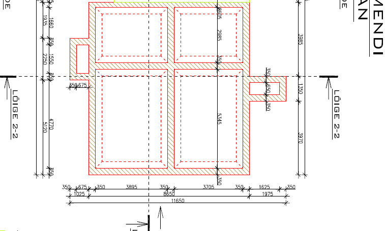
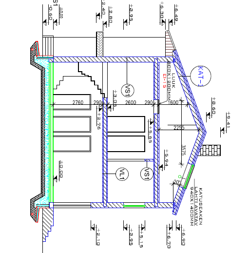
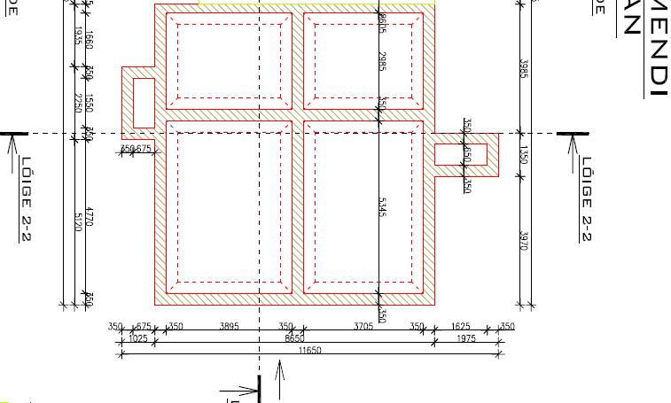
Töö sisu

Soojustatud maja (ilma sise- ja välisviimistluseta). Plaatvundamendil, aluspinnaks on vesiliiv. Katusekate kiviprofiilplekk. Põrandas küttetorustik. 1.korruse lagi (2.korruse põrand) ka betoonist, sees samuti põrandaküttetorustik.

JOONISTEL ON UUS juurdeehitatav OSA, mille hinnapakkumist ootan. Vana olemasoleva osa lõikasin segaduse vältimiseks joonistelt maha.

Pildid, video ja failid

Hanke korraldaja: eraisik ID10908

Pakkumised

Pakkumisi kokku: 12

Ettevõte Summa Käibemaks Lisatud Vestlus
Kasutaja ikoon ID7379
Pakkuja profiil Väike nool paremale
44 280,6€ Ei sisalda Ei sisalda 17.04.2008 Vestlus (0)

Pakkumise kirjeldus:

plaatvunda,columbiast seinad,vahelagi ja katus

Kasutaja ikoon ID8743
Pakkuja profiil Väike nool paremale
37 541,7€ Ei sisalda Ei sisalda 19.04.2008 Vestlus (1)

Pakkumise kirjeldus:

Kiire ja kvaliteetne töö.2 a garantii

Kasutaja ikoon ID6724
Pakkuja profiil Väike nool paremale
55 008,8€ Sisaldab KM Sisaldab KM 19.04.2008 Vestlus (0)
Kasutaja ikoon ID6870
Pakkuja profiil Väike nool paremale
43 747,5€ Sisaldab KM Sisaldab KM 20.04.2008 Vestlus (0)
Kasutaja ikoon ID8043
Pakkuja profiil Väike nool paremale
39 625,2€ Ei sisalda Ei sisalda 25.04.2008 Vestlus (0)
Kasutaja ikoon ID7667
Pakkuja profiil Väike nool paremale
39 944,8€ Sisaldab KM Sisaldab KM 27.04.2008 Vestlus (0)
Kasutaja ikoon ID8943
Pakkuja profiil Väike nool paremale
37 343,6€ Ei sisalda Ei sisalda 30.04.2008 Vestlus (1)

Pakkumise kirjeldus:

Töö kiire ja korralik. Kindlasti meie lahendus sobib Teile.

Kasutaja ikoon ID7563
Pakkuja profiil Väike nool paremale
43 971,2€ Sisaldab KM Sisaldab KM 30.04.2008 Vestlus (0)
Kasutaja ikoon ID2173
Pakkuja profiil Väike nool paremale
36 813,1€ Sisaldab KM Sisaldab KM 30.04.2008 Vestlus (1)
Kasutaja ikoon ID1796
Pakkuja profiil Väike nool paremale
50 899,2€ Ei sisalda Ei sisalda 06.05.2008 Vestlus (0)

Pakkumise kirjeldus:

mjakarp, katus, põrandaküte mõlema korrusel

Kasutaja ikoon ID6857
Pakkuja profiil Väike nool paremale
61 355,2€ Ei sisalda Ei sisalda 07.05.2008 Vestlus (0)

Pakkumise kirjeldus:

soojustatud karp aerocist välisviimistlusega

Kasutaja ikoon ID851
Pakkuja profiil Väike nool paremale
44 132,3€ Ei sisalda Ei sisalda 07.05.2008 Vestlus (0)

Küsimused hanke korraldajale

Hanke korraldajale ei ole veel küsimusi esitatud.

Lisa küsimus

Lisa küsimus

Minu pakkumine

Reeglid

Pakkumise kirjelduse väli on mõeldud pakkumise detailsemaks lahti kirjutamiseks. Pikema teksti mugavaks sisestamiseks klikkige kasti paremal ülaservas oleval ikoonil.
Pakkumist tehes on keelatud postitada enda kontaktandmeid (nimi, telefon, aadress jne). Me jälgime ja analüüsime pakkumisi, et vältida pettuseid ja reeglite rikkumisi.
Rikkumise puhul kasutajakonto blokeeritakse.

 

Teisi töid samas valdkonnas

Valdkonnas "Eramu ehitus" on 2 aktiivset tööd

Eramu ehitus

Asukoht: Viljandimaa, Viljandi
Aega jäänud: 5p 12h
Tehtud pakkumisi: 1

no-img Pilt puudub

Eramu ehitus. Karp kinni.

Asukoht: Lääne-Virumaa
Aega jäänud: 3p 12h
Tehtud pakkumisi: 0

Vanemad teated:

Vaata kõiki

Sellel veebilehel kasutatakse küpsiseid. Kasutamist jätkates nõustute küpsiste kasutamisega.

Sulge
 
Minu pakkumine

Reeglid

Pakkumise kirjelduse väli on mõeldud pakkumise detailsemaks lahti kirjutamiseks. Pikema teksti mugavaks sisestamiseks klikkige kasti paremal ülaservas oleval ikoonil.
Pakkumist tehes on keelatud postitada enda kontaktandmeid (nimi, telefon, aadress jne). Me jälgime ja analüüsime pakkumisi, et vältida pettuseid ja reeglite rikkumisi.
Rikkumise puhul kasutajakonto blokeeritakse.