+ Lisa oma töö      

Otsid ehitajat "Ehituse peatöövõtt" valdkonnast?

Parima pakkumise ja teostaja leidmiseks lisa oma töö.

Ridasuvila kahe boksi juurdeehitus (lisakorrus)

ID 7617

4053 vaatamist

Prindi

  • check Pakkumiste tegemine
    kuni 03.05.2008
  • check Võitja valik kuni
    10.05.2008
  • 3 Töö teostamine
    ja hinnang
Hanke lõpp: L, 3. mai, 2008
Maakond: Harjumaa
Muu asula: Keila vald
Tööde algus: L, 10. mai, 2008 (Soovituslik)
Tööde lõpp: T, 01. juuli, 2008 (Soovituslik)
Ehitusmaterjalid: Töö tegija poolt

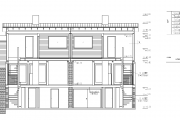
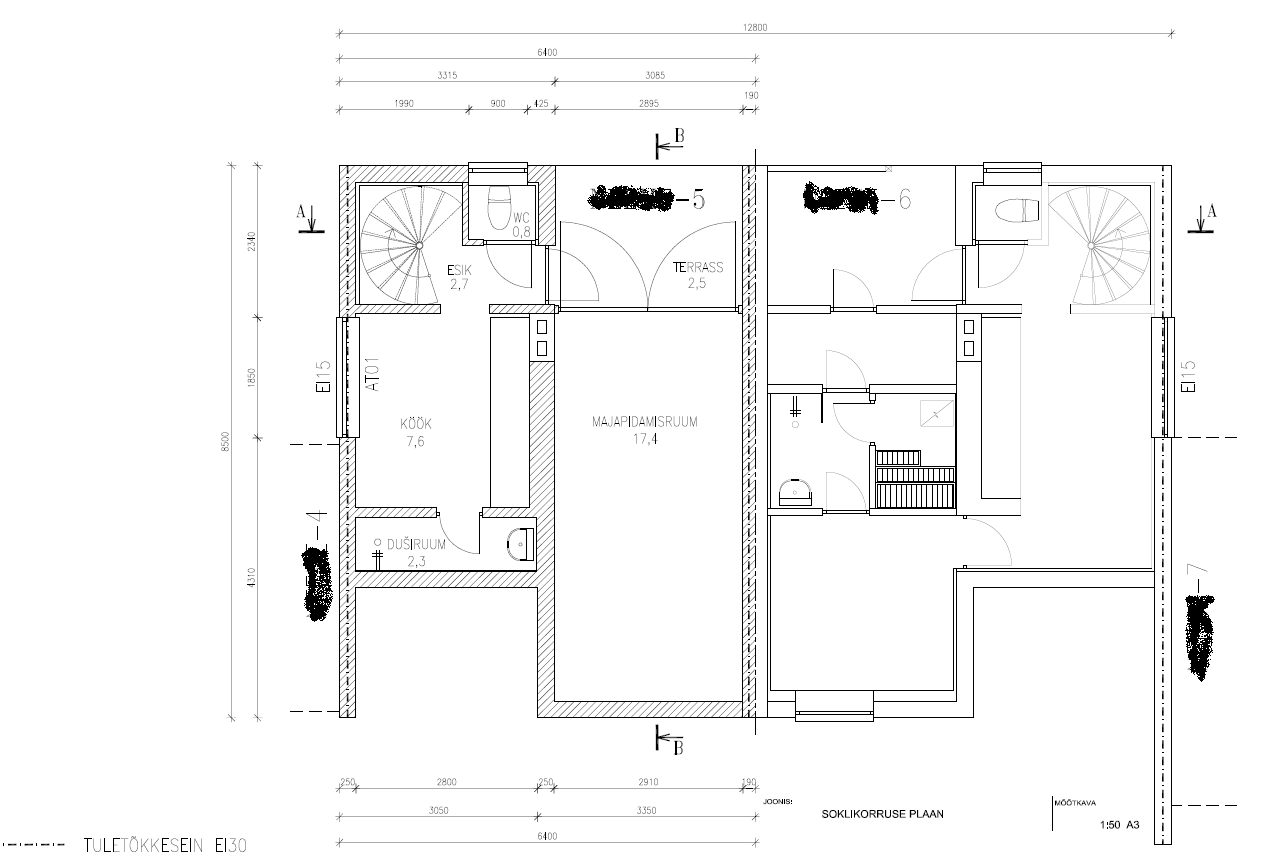
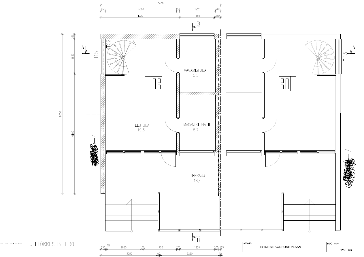
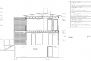
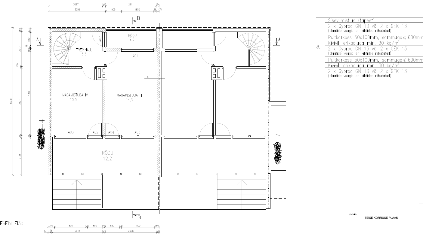
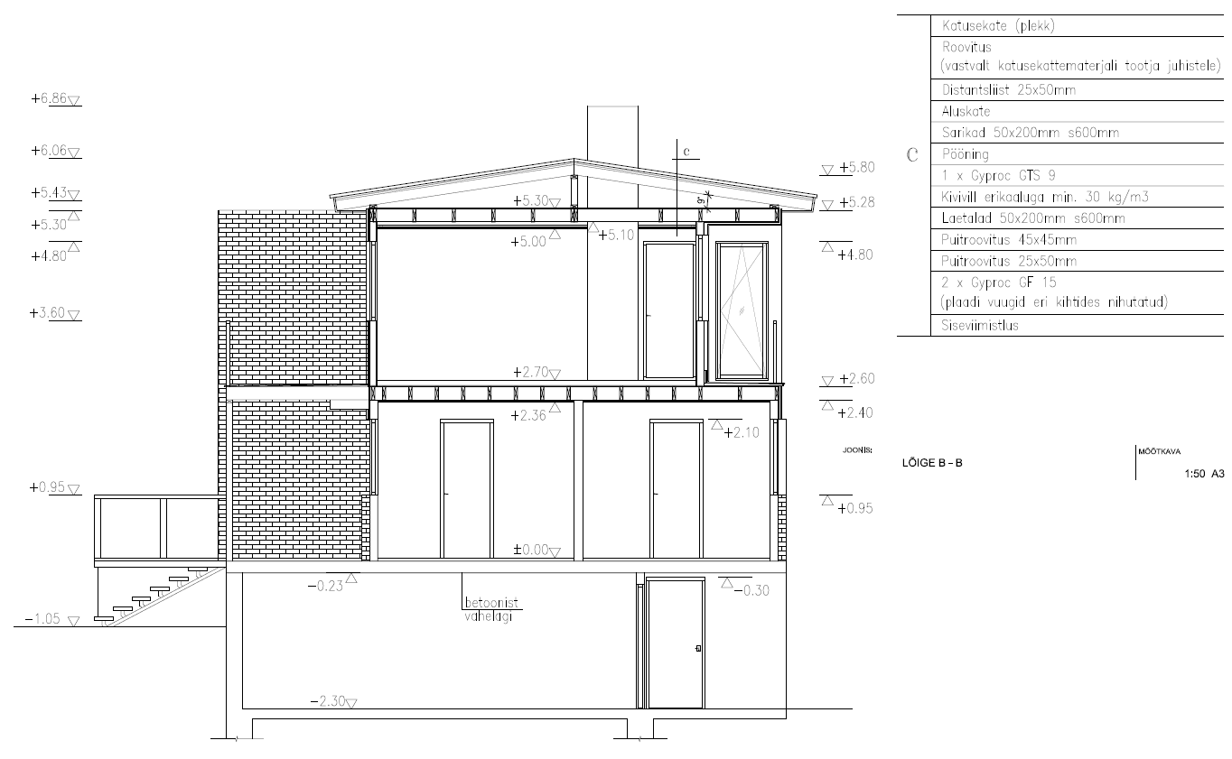
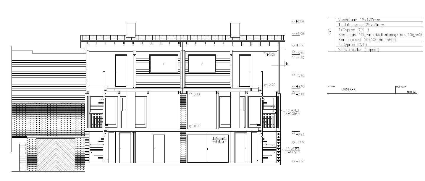
Töö sisu

Ümberehituse käigus tehakse olemasolevale 1,5 kordsele hoonele peale puitkonstruktsioonis teine korrus,
ehitusalust pinda ei suurendata.
Hetkel paikneb krundil 1970-ndate aastate I pooles ehitatud tellistest soklikorrusega
puitkonstruktsioonis ühekorruseline ridamaja suvilaboks nr 5, mis asub bokside xxxx-4 ja
xxxx-6 vahel. Ehitusluba olemas. Lisatud on projekt.

Pildid, video ja failid

Hanke korraldaja: eraisik ID6236

Pakkumised

Pakkumisi kokku: 6

Ettevõte Summa Käibemaks Lisatud Vestlus
Kasutaja ikoon ID8870
Pakkuja profiil Väike nool paremale
49 774,4€ Sisaldab KM Sisaldab KM 22.04.2008 Vestlus (0)

Pakkumise kirjeldus:

Koos vöö valuga

Kasutaja ikoon ID1801
Pakkuja profiil Väike nool paremale
49 359,0€ Sisaldab KM Sisaldab KM 23.04.2008 Vestlus (0)
Kasutaja ikoon ID9393
Pakkuja profiil Väike nool paremale
47 933,7€ Sisaldab KM Sisaldab KM 24.04.2008 Vestlus (0)
Kasutaja ikoon ID11130
Pakkuja profiil Väike nool paremale
47 933,7€ Sisaldab KM Sisaldab KM 29.04.2008 Vestlus (0)
Kasutaja ikoon ID7563
Pakkuja profiil Väike nool paremale
55 922,7€ Sisaldab KM Sisaldab KM 02.05.2008 Vestlus (0)
Kasutaja ikoon ID2173
Pakkuja profiil Väike nool paremale
41 478,7€ Sisaldab KM Sisaldab KM 02.05.2008 Vestlus (0)

Küsimused hanke korraldajale

Hanke korraldajale ei ole veel küsimusi esitatud.

Lisa küsimus

Lisa küsimus

Minu pakkumine

Reeglid

Pakkumise kirjelduse väli on mõeldud pakkumise detailsemaks lahti kirjutamiseks. Pikema teksti mugavaks sisestamiseks klikkige kasti paremal ülaservas oleval ikoonil.
Pakkumist tehes on keelatud postitada enda kontaktandmeid (nimi, telefon, aadress jne). Me jälgime ja analüüsime pakkumisi, et vältida pettuseid ja reeglite rikkumisi.
Rikkumise puhul kasutajakonto blokeeritakse.

 

Vanemad teated:

Vaata kõiki

Sellel veebilehel kasutatakse küpsiseid. Kasutamist jätkates nõustute küpsiste kasutamisega.

Sulge
 
Minu pakkumine

Reeglid

Pakkumise kirjelduse väli on mõeldud pakkumise detailsemaks lahti kirjutamiseks. Pikema teksti mugavaks sisestamiseks klikkige kasti paremal ülaservas oleval ikoonil.
Pakkumist tehes on keelatud postitada enda kontaktandmeid (nimi, telefon, aadress jne). Me jälgime ja analüüsime pakkumisi, et vältida pettuseid ja reeglite rikkumisi.
Rikkumise puhul kasutajakonto blokeeritakse.