+ Lisa oma töö      

Otsid ehitajat "Eramu ehitus" valdkonnast?

Parima pakkumise ja teostaja leidmiseks lisa oma töö.

Juurdeehitus (Elva)

ID 7822

4031 vaatamist

Prindi

  • check Pakkumiste tegemine
    kuni 13.05.2008
  • check Võitja valik kuni
    20.05.2008
  • 3 Töö teostamine
    ja hinnang
Hanke lõpp: T, 13. mai, 2008
Maakond: Tartumaa
Linn: Elva
Tööde algus: E, 02. juuni, 2008 (Soovituslik)
Tööde lõpp: E, 21. juuli, 2008 (Soovituslik)
Ehitusmaterjalid: Töö tegija poolt

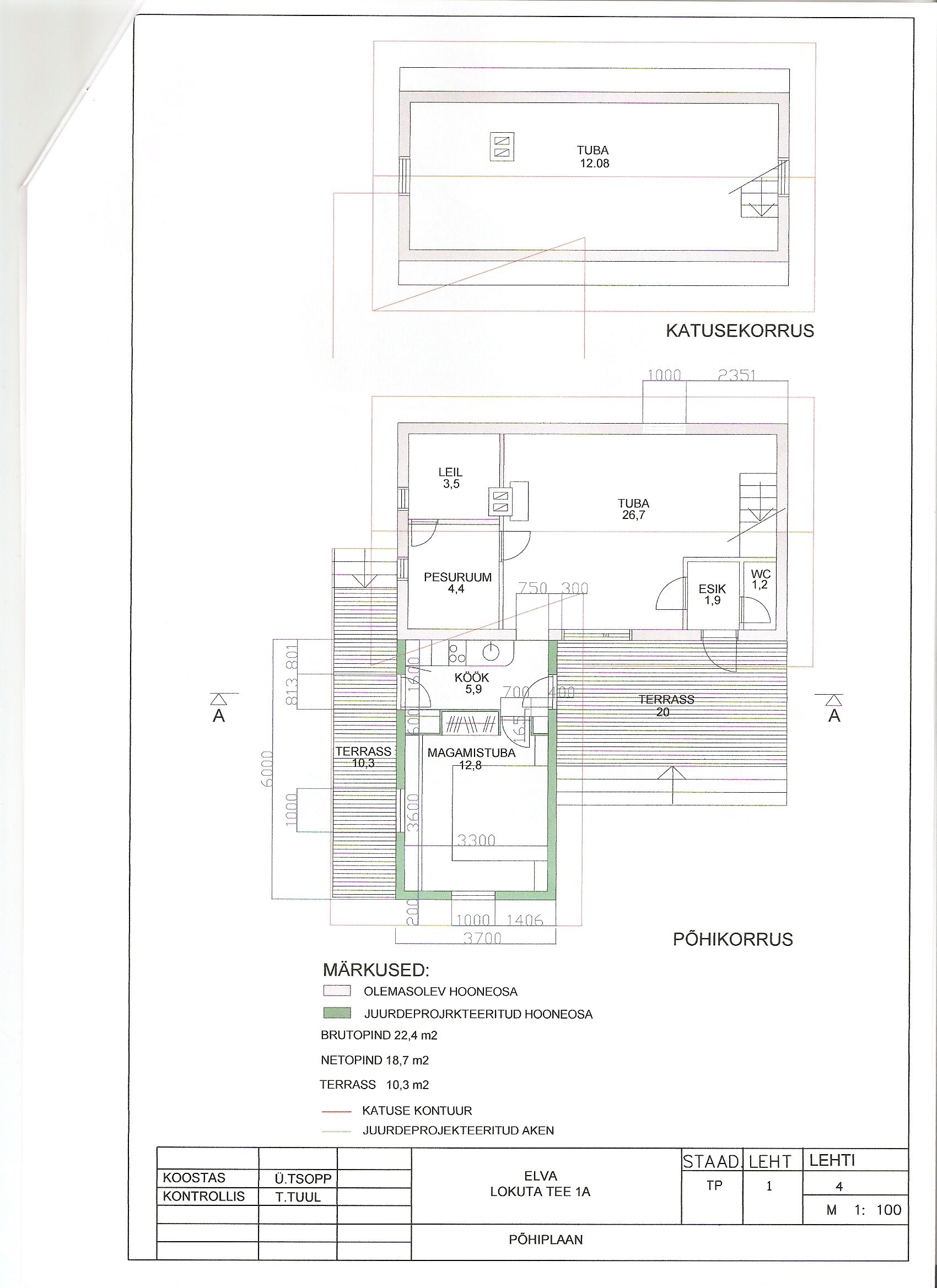
Töö sisu

Juurdeehitus elumajale. Puitmaterjal, aknad, uksed, sise- ja elektritööd hakne korraldaja poolt.

Pildid, video ja failid

Hanke korraldaja: eraisik ID11257

Pakkumised

Pakkumisi kokku: 4

Ettevõte Summa Käibemaks Lisatud Vestlus
Kasutaja ikoon ID7720
Pakkuja profiil Väike nool paremale
15 977,9€ Sisaldab KM Sisaldab KM 06.05.2008 Vestlus (0)

Pakkumise kirjeldus:

maja ilma siseviimistluseta ja elektritöödeta.

Kasutaja ikoon ID6870
Pakkuja profiil Väike nool paremale
13 741€ Sisaldab KM Sisaldab KM 07.05.2008 Vestlus (0)

Pakkumise kirjeldus:

Puitmaterjal,aknad uksed+töö

Kasutaja ikoon ID8943
Pakkuja profiil Väike nool paremale
12 673,7€ Ei sisalda Ei sisalda 12.05.2008 Vestlus (0)

Pakkumise kirjeldus:

Töö kiire ja korralik

Kasutaja ikoon ID6541
Pakkuja profiil Väike nool paremale
14 060,6€ Ei sisalda Ei sisalda 13.05.2008 Vestlus (0)

Küsimused hanke korraldajale

Hanke korraldajale ei ole veel küsimusi esitatud.

Lisa küsimus

Lisa küsimus

Minu pakkumine

Reeglid

Pakkumise kirjelduse väli on mõeldud pakkumise detailsemaks lahti kirjutamiseks. Pikema teksti mugavaks sisestamiseks klikkige kasti paremal ülaservas oleval ikoonil.
Pakkumist tehes on keelatud postitada enda kontaktandmeid (nimi, telefon, aadress jne). Me jälgime ja analüüsime pakkumisi, et vältida pettuseid ja reeglite rikkumisi.
Rikkumise puhul kasutajakonto blokeeritakse.

 

Vanemad teated:

Vaata kõiki

Sellel veebilehel kasutatakse küpsiseid. Kasutamist jätkates nõustute küpsiste kasutamisega.

Sulge
 
Minu pakkumine

Reeglid

Pakkumise kirjelduse väli on mõeldud pakkumise detailsemaks lahti kirjutamiseks. Pikema teksti mugavaks sisestamiseks klikkige kasti paremal ülaservas oleval ikoonil.
Pakkumist tehes on keelatud postitada enda kontaktandmeid (nimi, telefon, aadress jne). Me jälgime ja analüüsime pakkumisi, et vältida pettuseid ja reeglite rikkumisi.
Rikkumise puhul kasutajakonto blokeeritakse.