+ Lisa oma töö      

Otsid ehitajat "Fassaaditööd" valdkonnast?

Parima pakkumise ja teostaja leidmiseks lisa oma töö.

Fassaadi krohvimine lubikrohviga

ID 8063

5023 vaatamist

Prindi

  • check Pakkumiste tegemine
    kuni 02.06.2008
  • check Võitja valik kuni
    09.06.2008
  • 3 Töö teostamine
    ja hinnang
Hanke lõpp: E, 2. juuni, 2008
Maakond: Raplamaa
Muu asula: Ingliste
Tööde algus: P, 01. juuni, 2008 (Soovituslik)
Tööde lõpp: K, 30. juuli, 2008 (Soovituslik)
Ehitusmaterjalid: Töö tellija poolt

Töö sisu

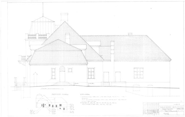
Ingliste mõisa fassaadi renoveerimistööd. Krohviks lubikrohv. Töövõtja peab omama muinsuskaitse luba tehtavale tööle. Objektiga võib tutvuda iseseisvalt. Hinnapakkumine mõlema töö jaoks teha eraldi. Ehitusmaterjalid tööandja poolt. Tööks vajalikud seadmed ja tööriistad töövõtjal. Tööaeg juuni - august.

Pildid, video ja failid

Hanke korraldaja: eraisik ID6328

Pakkumised

Pakkumisi kokku: 6

Ettevõte Summa Käibemaks Lisatud Vestlus
Kasutaja ikoon ID9895
Pakkuja profiil Väike nool paremale
41,5€ Ei sisalda Ei sisalda 22.05.2008 Vestlus (0)

Pakkumise kirjeldus:

sisaldab töö, tellingud ja materjalid

Kasutaja ikoon ID11144
Pakkuja profiil Väike nool paremale
39,6€ Ei sisalda Ei sisalda 27.05.2008 Vestlus (0)

Pakkumise kirjeldus:

Pakkumises arvestatud hinnapäringu tingimustega

Kasutaja ikoon ID11658
Pakkuja profiil Väike nool paremale
37,7€ Ei sisalda Ei sisalda 30.05.2008 Vestlus (0)
Kasutaja ikoon ID6760
Pakkuja profiil Väike nool paremale
25,6€ Ei sisalda Ei sisalda 01.06.2008 Vestlus (0)
Kasutaja ikoon ID11176
Pakkuja profiil Väike nool paremale
30,4€ Sisaldab KM Sisaldab KM 02.06.2008 Vestlus (0)

Pakkumise kirjeldus:

edastame meie tööst hinnanguid (Facio, Tarrest, jne)

Kasutaja ikoon ID6857
Pakkuja profiil Väike nool paremale
28 121,1€ Sisaldab KM Sisaldab KM 02.06.2008 Vestlus (0)

Küsimused hanke korraldajale

Küsimus: private ID2775   19.05.2008 22:55
kas vana krohv maha?

Teavita reeglite rikkumisest

Korraldaja vastus: 10.05.2026 00:46

Osaliselt maha ja restaureeritavas seinas peab alles jääma. Suurem osa on vana krohv maas.

Teavita reeglite rikkumisest

Küsimus: private ID6541   20.05.2008 18:19
milles seisneb kaks tööd, hankest ei loe seda välja.

Teavita reeglite rikkumisest

Korraldaja vastus: 10.05.2026 00:46

Vabandan, tegu oli ka katuse vahetusega ja tegin copi -paste. Loe hinnapakkumine teha ainult krohvimistöödele

Teavita reeglite rikkumisest

Lisa küsimus

Lisa küsimus

Minu pakkumine

Reeglid

Pakkumise kirjelduse väli on mõeldud pakkumise detailsemaks lahti kirjutamiseks. Pikema teksti mugavaks sisestamiseks klikkige kasti paremal ülaservas oleval ikoonil.
Pakkumist tehes on keelatud postitada enda kontaktandmeid (nimi, telefon, aadress jne). Me jälgime ja analüüsime pakkumisi, et vältida pettuseid ja reeglite rikkumisi.
Rikkumise puhul kasutajakonto blokeeritakse.

 

Teisi töid samas valdkonnas

Valdkonnas "Fassaaditööd" on 12 aktiivset tööd

Akende ja viilude parandus ja värvimine

Asukoht: Valgamaa, Valga
Aega jäänud: 23h 13 min
Tehtud pakkumisi: 3

Eramaja vintskapide laudise paigaldus

Asukoht: Pärnumaa, Pärnu-Jaagupi
Aega jäänud: 9p 23h
Tehtud pakkumisi: 2

Vanemad teated:

Vaata kõiki

Sellel veebilehel kasutatakse küpsiseid. Kasutamist jätkates nõustute küpsiste kasutamisega.

Sulge
 
Minu pakkumine

Reeglid

Pakkumise kirjelduse väli on mõeldud pakkumise detailsemaks lahti kirjutamiseks. Pikema teksti mugavaks sisestamiseks klikkige kasti paremal ülaservas oleval ikoonil.
Pakkumist tehes on keelatud postitada enda kontaktandmeid (nimi, telefon, aadress jne). Me jälgime ja analüüsime pakkumisi, et vältida pettuseid ja reeglite rikkumisi.
Rikkumise puhul kasutajakonto blokeeritakse.