+ Lisa oma töö      

Otsid ehitajat "Siseviimistlustööd" valdkonnast?

Parima pakkumise ja teostaja leidmiseks lisa oma töö.

Siseviimistlustööd majas

ID 8157

4834 vaatamist

Prindi

  • check Pakkumiste tegemine
    kuni 07.06.2008
  • check Võitja valik kuni
    14.06.2008
  • 3 Töö teostamine
    ja hinnang
Hanke lõpp: L, 7. juuni, 2008
Maakond: Tartumaa
Linn: Tartu
Tööde algus: P, 01. juuni, 2008 (Soovituslik)
Tööde lõpp: P, 10. mai, 2026 (Soovituslik)
Ehitusmaterjalid: Töö tegija poolt

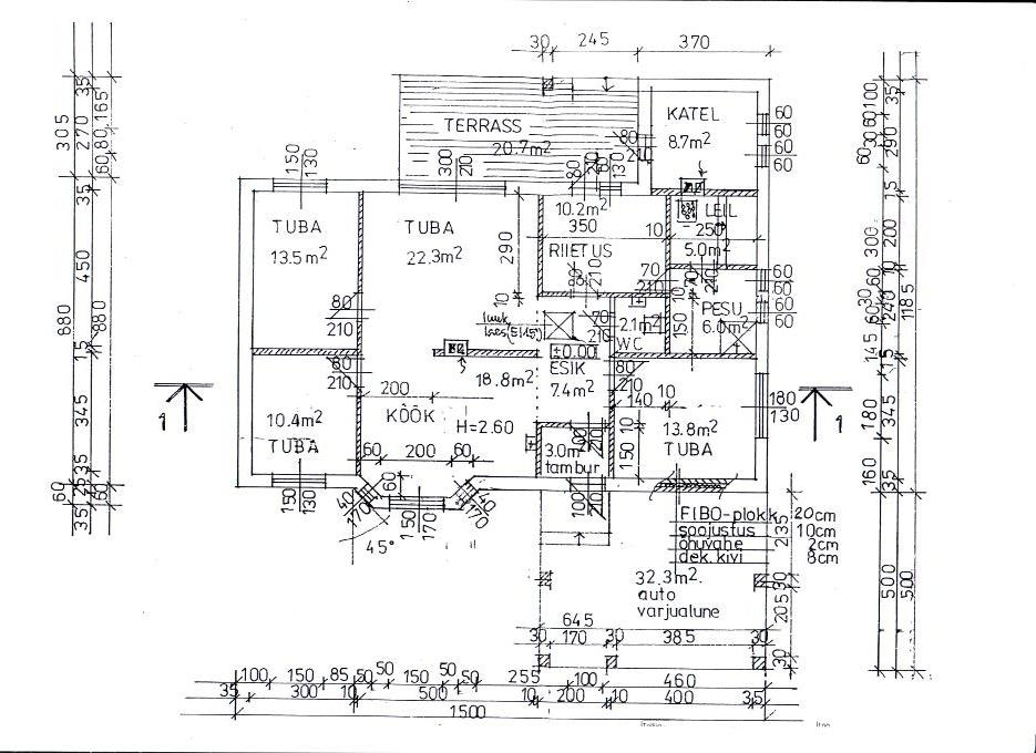
Töö sisu

Maja karp 122m2, seest tehtud valatud põrand ja paigaldatud põrandakütte torustik. Vaja teha projekti järgi kõik ülejäänud sisetööd, piltidelt näha et majas sees olemas keskel 3 kandvat seina ülejäänud vaja teha projekti järgi, samuti vaja soojustada katuse alune hetkel plekkkatus sarikatel soojustamatta. Pakkuda pole vaja küttesüsteemi ja eletritöid, ülejäänud tööd vajalikud.

Pildid, video ja failid

Hanke korraldaja: eraisik ID11557

Pakkumised

Pakkumisi kokku: 9

Ettevõte Summa Käibemaks Lisatud Vestlus
Kasutaja ikoon ID8870
Pakkuja profiil Väike nool paremale
33,9€ Sisaldab KM Sisaldab KM 25.05.2008 Vestlus (4)

Pakkumise kirjeldus:

1 m2 hind ligikaudne.

Kasutaja ikoon ID11510
Pakkuja profiil Väike nool paremale
25 692,5€ Ei sisalda Ei sisalda 25.05.2008 Vestlus (0)

Pakkumise kirjeldus:

Hind sisaldab kõiki materjale kaasa arvatud soojustus,siseuksed,pahtlid,värvid,plaadid ja samuti kõiki töid.Hind võib muutuda,kui klient soovib kasutada teisi materjale ja teha projektis muudatusi.

Kasutaja ikoon ID10532
Pakkuja profiil Väike nool paremale
14 060,6€ Ei sisalda Ei sisalda 26.05.2008 Vestlus (1)
Kasutaja ikoon ID6870
Pakkuja profiil Väike nool paremale
13 795,3€ Ei sisalda Ei sisalda 26.05.2008 Vestlus (1)
Kasutaja ikoon ID1430
Pakkuja profiil Väike nool paremale
23 545,1€ Ei sisalda Ei sisalda 26.05.2008 Vestlus (1)
Kasutaja ikoon ID11625
Pakkuja profiil Väike nool paremale
15 019,2€ Ei sisalda Ei sisalda 29.05.2008 Vestlus (1)

Pakkumise kirjeldus:

Parkett+paigaldus...220eek/m2

Kasutaja ikoon ID5994
Pakkuja profiil Väike nool paremale
14 060,6€ Ei sisalda Ei sisalda 29.05.2008 Vestlus (4)
Kasutaja ikoon ID8943
Pakkuja profiil Väike nool paremale
12 686,5€ Ei sisalda Ei sisalda 06.06.2008 Vestlus (0)

Pakkumise kirjeldus:

Töö kiire ja korralik.

Kasutaja ikoon ID9894
Pakkuja profiil Väike nool paremale
16 617,0€ Ei sisalda Ei sisalda 06.06.2008 Vestlus (0)

Küsimused hanke korraldajale

Küsimus: private ID11625   28.05.2008 15:36
Arusaamatu kuidas saavad inimesed pakkumisi teha, kui ei ole teada mis materjal läheb lakke, kuidas seinad viimistleda jne. KAs saate palun tüpsustada mis ja kuhu ja kuidas? Tänan.

Teavita reeglite rikkumisest

Korraldaja vastus: 10.05.2026 17:08

Lakke läheks kips saunaruumid puidust (seinad laed põrand plaatida), seinadkrohvida, pahteldada ja värvida, põrandale parkett

Teavita reeglite rikkumisest

Lisa küsimus

Lisa küsimus

Minu pakkumine

Reeglid

Pakkumise kirjelduse väli on mõeldud pakkumise detailsemaks lahti kirjutamiseks. Pikema teksti mugavaks sisestamiseks klikkige kasti paremal ülaservas oleval ikoonil.
Pakkumist tehes on keelatud postitada enda kontaktandmeid (nimi, telefon, aadress jne). Me jälgime ja analüüsime pakkumisi, et vältida pettuseid ja reeglite rikkumisi.
Rikkumise puhul kasutajakonto blokeeritakse.

 

Teisi töid samas valdkonnas

Valdkonnas "Siseviimistlustööd" on 25 aktiivset tööd

Korteri remont

Asukoht: Harjumaa, Muraste
Aega jäänud: 2p 6h
Tehtud pakkumisi: 15

no-img Pilt puudub

Laminaatparketi paigaldus

Asukoht: Harjumaa, Tallinn
Aega jäänud: 4p 6h
Tehtud pakkumisi: 8

Vanemad teated:

Vaata kõiki

Sellel veebilehel kasutatakse küpsiseid. Kasutamist jätkates nõustute küpsiste kasutamisega.

Sulge
 
Minu pakkumine

Reeglid

Pakkumise kirjelduse väli on mõeldud pakkumise detailsemaks lahti kirjutamiseks. Pikema teksti mugavaks sisestamiseks klikkige kasti paremal ülaservas oleval ikoonil.
Pakkumist tehes on keelatud postitada enda kontaktandmeid (nimi, telefon, aadress jne). Me jälgime ja analüüsime pakkumisi, et vältida pettuseid ja reeglite rikkumisi.
Rikkumise puhul kasutajakonto blokeeritakse.