+ Lisa oma töö      

Otsid ehitajat "Vundamenditööd" valdkonnast?

Parima pakkumise ja teostaja leidmiseks lisa oma töö.

Maja juurdeehtitusele vundamenti vaja

ID 8212

2380 vaatamist

Prindi

  • check Pakkumiste tegemine
    kuni 28.05.2008
  • check Võitja valik kuni
    04.06.2008
  • 3 Töö teostamine
    ja hinnang
Hanke lõpp: K, 28. mai, 2008
Maakond: Harjumaa
Muu asula: Kiili Vald
Tööde algus: T, 01. juuli, 2008 (Soovituslik)
Tööde lõpp: P, 10. mai, 2026 (Soovituslik)
Ehitusmaterjalid: Töö tellija poolt

Töö sisu

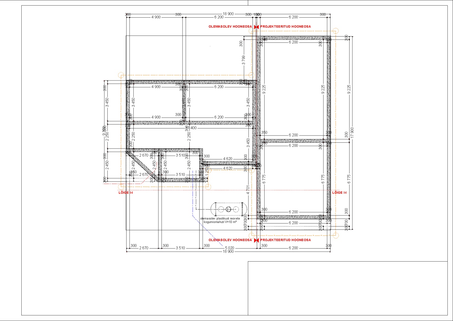
Tere! Projekt käes ja aeg asuda vundamendi kallale. Ütlen kohe, et minu jaoks ei oluline saada teab mis supervundamenti. Otsin taskukohast varianti olemasolevat materjali kasutades.
Olemas on 14 betoonplokki, mis on 2,4m pikad, 0,3m laiad ning 0,6m kõrged ning 3 0,9m pikkust samasugust betoonplokki, mis moodustavad umbes 2/3 vajalikust materjalist. Ülejäänud 1/3 tuleks millestki muust teha. Muidu on olemas veel ka tellismaterjali, mida annaks ehk vundamendi sisse ära peita.
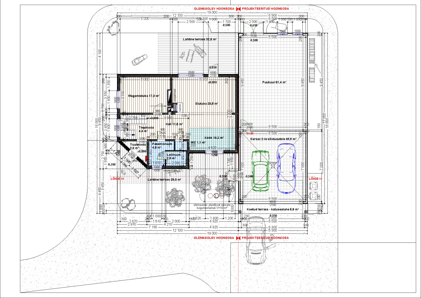
Nagu joonisetelt lugeda võib, on projekteeritud hooneosa veidi üle 100 ruutmeetri suur ning vundamendi sokiliosa kogupikkus 52,6m. Kuna olemasoleva maja vundament on kõrgel(pildilt näha), tuleb juurdeehituse vundament paarkümed cm madalam. Seetõttu ei kooriks võib-olla ka huumuskihti nii põhjalikult ära, kuna nagunii on vaja päris palju täita.

Nagu öeldud, otsin kogemuste ja vajaliku tehnikaga inimesi, kes vundamendi soodsalt ning venitamata ära teeksid.

Hinnapakkumisi võiks teha esiteks ainult tööraha ja teiseks tööraha koos puuduva materjaliga. Samuti võiks ära märkida orienteeruva töödeks kuluva aja.

Pildid, video ja failid

Hanke korraldaja: eraisik ID11585

Pakkumised

Pakkumisi kokku: 0

Küsimused hanke korraldajale

Hanke korraldajale ei ole veel küsimusi esitatud.

Lisa küsimus

Lisa küsimus

Minu pakkumine

Reeglid

Pakkumise kirjelduse väli on mõeldud pakkumise detailsemaks lahti kirjutamiseks. Pikema teksti mugavaks sisestamiseks klikkige kasti paremal ülaservas oleval ikoonil.
Pakkumist tehes on keelatud postitada enda kontaktandmeid (nimi, telefon, aadress jne). Me jälgime ja analüüsime pakkumisi, et vältida pettuseid ja reeglite rikkumisi.
Rikkumise puhul kasutajakonto blokeeritakse.

 

Vanemad teated:

Vaata kõiki

Sellel veebilehel kasutatakse küpsiseid. Kasutamist jätkates nõustute küpsiste kasutamisega.

Sulge
 
Minu pakkumine

Reeglid

Pakkumise kirjelduse väli on mõeldud pakkumise detailsemaks lahti kirjutamiseks. Pikema teksti mugavaks sisestamiseks klikkige kasti paremal ülaservas oleval ikoonil.
Pakkumist tehes on keelatud postitada enda kontaktandmeid (nimi, telefon, aadress jne). Me jälgime ja analüüsime pakkumisi, et vältida pettuseid ja reeglite rikkumisi.
Rikkumise puhul kasutajakonto blokeeritakse.