+ Lisa oma töö      

Otsid ehitajat "Vundamenditööd" valdkonnast?

Parima pakkumise ja teostaja leidmiseks lisa oma töö.

Juurdeehituse vundament

ID 8215

5969 vaatamist

Prindi

  • check Pakkumiste tegemine
    kuni 28.06.2008
  • check Võitja valik kuni
    05.07.2008
  • 3 Töö teostamine
    ja hinnang
Hanke lõpp: L, 28. juuni, 2008
Maakond: Harjumaa
Muu asula: Kiili vald
Tööde algus: T, 01. juuli, 2008 (Soovituslik)
Tööde lõpp: P, 10. mai, 2026 (Soovituslik)
Ehitusmaterjalid: Töö tellija poolt

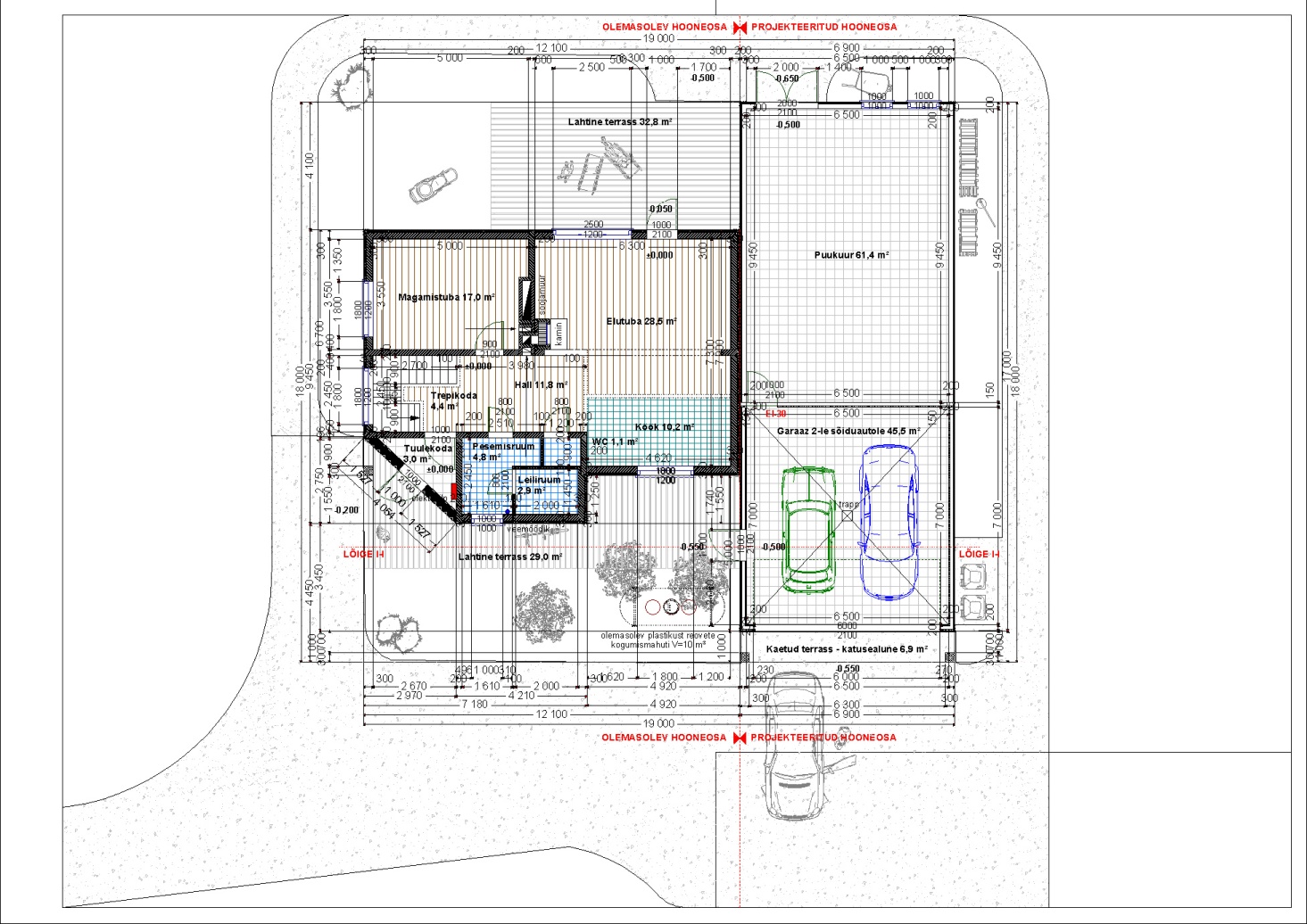
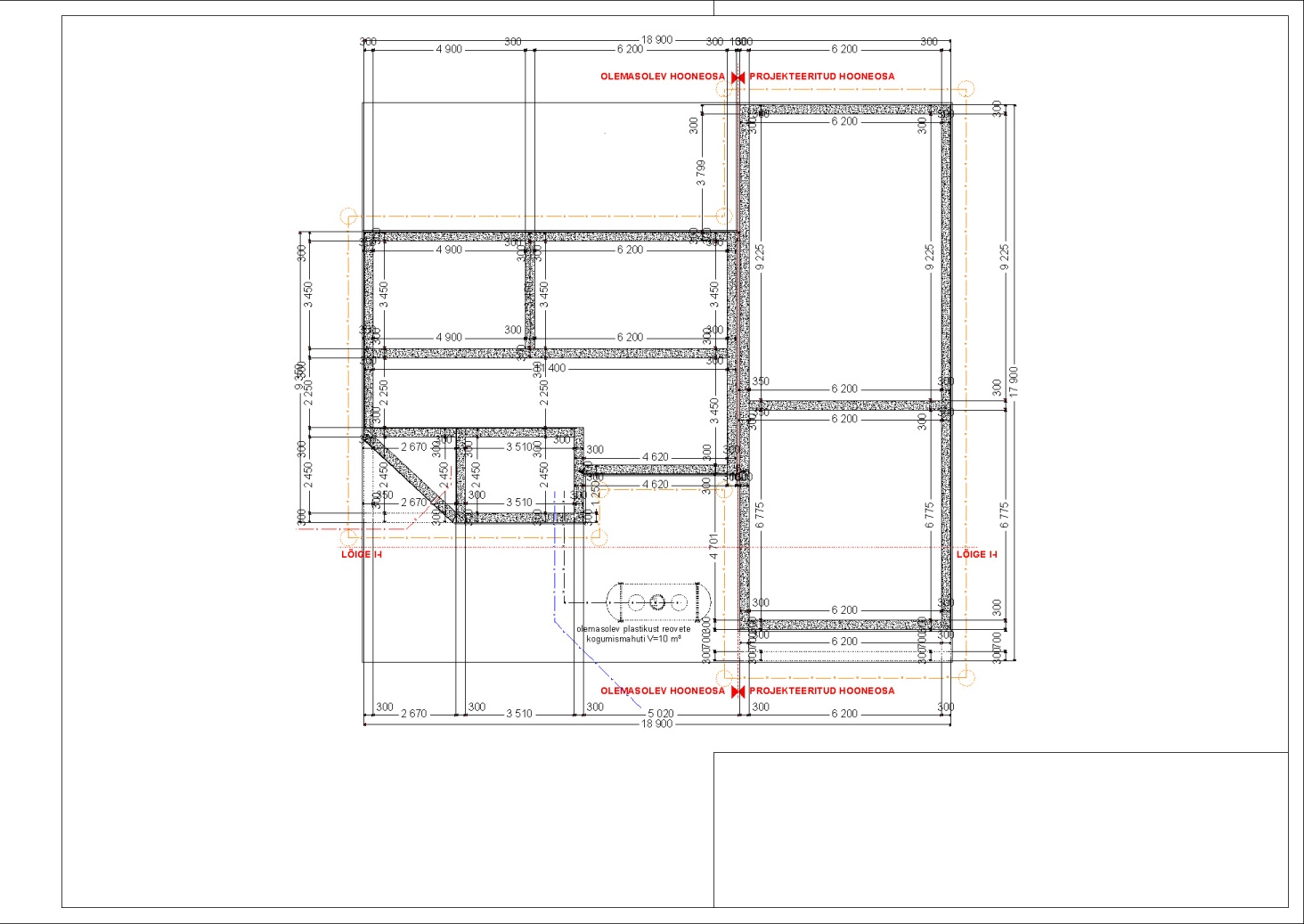
Töö sisu

Tere! Projekt käes ja aeg vundamendi juurde asuda. Ütlen kohe, et kuna eelarve on piiratud, pole eesmärgiks saada supervundamenti. Tahan olemasolevat materjali kasutadades võimalikult taskukohast vundamenti.
Olemas on 14 betoonplokki, mis on 2,4m pikad, 0,3m laiad ning 0,6m kõrged ning 3 0,9m pikkust samasugust betoonplokki, mis moodustavad umbes 2/3 vajalikust materjalist. Ülejäänud osa tuleb millestki muust teha. Olemas on veel muidu tellismaterjali, mida ehk annaks ka vundamendi sisse ära peita. Nagu ka joonistelt lugeda võib, on projekteeritud hooneosa veidi üle 100 ruutmeetri suur ning vundamendi sokiliosa kogupikkus 52,6m.
Kuna olemasoleva maja vundament asub kõrgel, tuleb juurdeehtiuse vundament paarkümend cm- madalamale. Seepärast ka võib-olla ei tasuks nii põhjalikult huumuskihti koorima hakata, kuna täita on vaja päris palju.

Nagu alguses mainitud, otsin inimesi, kes omavad kogemusi ning vajalikku tehnikat ja vunamendi soodsalt ning viivitamata ära teeksid.

Hinnapakkumised võiks teha 1) ainult tööraha, 2) puuduv materjal+tööraha.

Tekkis veel küsimus, et kas vundamendi ehitusele tehakse hinnapakkumisi ainult talla, taldmiku ja sokliosa ehituseks vajalikele materjalidele ja töödele või siis ka põrandate osa täitmist kruusa, kergkruusaga ning betoonpõranda valamist näiteks ning veel võimalikele ettetulevatele töödele?

Parimat,

Margus.

Pildid, video ja failid

Hanke korraldaja: eraisik ID11585

Pakkumised

Pakkumisi kokku: 3

Ettevõte Summa Käibemaks Lisatud Vestlus
Kasutaja ikoon ID8870
Pakkuja profiil Väike nool paremale
22,4€ Ei sisalda Ei sisalda 28.05.2008 Vestlus (0)

Pakkumise kirjeldus:

Tunni hinne kahele mehele

Kasutaja ikoon ID8781
Pakkuja profiil Väike nool paremale
16,0€ Ei sisalda Ei sisalda 17.06.2008 Vestlus (0)

Pakkumise kirjeldus:

250,-/h + materjalid

Kasutaja ikoon ID8785
Pakkuja profiil Väike nool paremale
3 515,1€ Ei sisalda Ei sisalda 26.06.2008 Vestlus (0)

Pakkumise kirjeldus:

see on tööraha, mis sisaldab vundamendi ehitust, põranda penoplasti, armatuuri, põrandakütte, kanalisatsiooni paigaldust ja põranda valamist. lisandub materjal 90000.-

Küsimused hanke korraldajale

Hanke korraldajale ei ole veel küsimusi esitatud.

Lisa küsimus

Lisa küsimus

Minu pakkumine

Reeglid

Pakkumise kirjelduse väli on mõeldud pakkumise detailsemaks lahti kirjutamiseks. Pikema teksti mugavaks sisestamiseks klikkige kasti paremal ülaservas oleval ikoonil.
Pakkumist tehes on keelatud postitada enda kontaktandmeid (nimi, telefon, aadress jne). Me jälgime ja analüüsime pakkumisi, et vältida pettuseid ja reeglite rikkumisi.
Rikkumise puhul kasutajakonto blokeeritakse.

 

Vanemad teated:

Vaata kõiki

Sellel veebilehel kasutatakse küpsiseid. Kasutamist jätkates nõustute küpsiste kasutamisega.

Sulge
 
Minu pakkumine

Reeglid

Pakkumise kirjelduse väli on mõeldud pakkumise detailsemaks lahti kirjutamiseks. Pikema teksti mugavaks sisestamiseks klikkige kasti paremal ülaservas oleval ikoonil.
Pakkumist tehes on keelatud postitada enda kontaktandmeid (nimi, telefon, aadress jne). Me jälgime ja analüüsime pakkumisi, et vältida pettuseid ja reeglite rikkumisi.
Rikkumise puhul kasutajakonto blokeeritakse.