+ Lisa oma töö      

Otsid ehitajat "Siseviimistlustööd" valdkonnast?

Parima pakkumise ja teostaja leidmiseks lisa oma töö.

Hange on lõppenud!

Võitjaks osutus kasutaja ID 11485

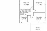
2 korruseline funk-stiilis eramu siseviimistlus 130 m2

ID 8453

7435 vaatamist

Prindi

  • check Pakkumiste tegemine
    kuni 20.06.2008
  • check Võitja valik kuni
    27.06.2008
  • 3 Töö teostamine
    ja hinnang
Hanke lõpp: R, 20. juuni, 2008
Maakond: Harjumaa
Muu asula: Rae vald
Tööde algus: K, 25. juuni, 2008 (Soovituslik)
Tööde lõpp: E, 25. august, 2008 (Soovituslik)
Ehitusmaterjalid: Töö tegija poolt

Töö sisu

Elekter: elektriprojekt, lülitid, pistikud, elektrikilp, tv pesad, sidepesad
Santeh: II korrusele küttetorustik - radiaatorid, valamu, dush, vann, 2wc
Saun: lehtpuit laudis, saunauks, saunalava, elektrikeris
Katlamaja: ioonküttekatel, soojaveeboiler
Vent: torustik, plafoonid, köögikubu väljatõmbe toru
Soojustus: esimese ja teise vahelae soojustus 100 mm
Laed: karkass, kipsplaat
Põrand: I k põrandate tasandus, nat,puitparkett 14mm, liistud, ker.plaat
II k mittekandvad vaheseinad metallkarkassilpaksusega 92 mm
Siseuksed: uks, leng,pakk,liistud
Viimistlus: värvitud laed -seinad, vannitoad plaatida
Välistrepp betoon-plaat, sisetrepp metallkarkass värvida ja puit astmed
Välisrõdu: kate ja piirded
Terrass 14 m2

Pildid, video ja failid

Hanke korraldaja: eraisik ID11824

Pakkumised

Pakkumisi kokku: 2

Ettevõte Summa Käibemaks Lisatud Vestlus
Kasutaja ikoon ID7416
Pakkuja profiil Väike nool paremale
8 308,5€ Ei sisalda Ei sisalda 13.06.2008 Vestlus (0)

Pakkumise kirjeldus:

Elekter: elektriprojekt, lülitid, pistikud, elektrikilp, tv pesad, sidepesad

Kasutaja ikoon ID11485
Pakkuja profiil Väike nool paremale
0,1€ Ei sisalda Ei sisalda 18.06.2008 Vestlus (0)

Pakkumise kirjeldus:

vajalikud detailsemad töömahud, ning sõlmede lõiked

Küsimused hanke korraldajale

Küsimus: private ID1058   13.06.2008 21:26
Tere,info väga puudulik,materjalid ehitaja poolt,

Teavita reeglite rikkumisest

Korraldaja vastus: 10.05.2026 14:30

pakkuge midagi välja pärast saab läbirääkida ja täpsustada, viimistlus materjalid võiks olla keskmise hinnaga, materjalid mida ei oska panna räägime hiljem

Teavita reeglite rikkumisest

Lisa küsimus

Lisa küsimus

Minu pakkumine

Reeglid

Pakkumise kirjelduse väli on mõeldud pakkumise detailsemaks lahti kirjutamiseks. Pikema teksti mugavaks sisestamiseks klikkige kasti paremal ülaservas oleval ikoonil.
Pakkumist tehes on keelatud postitada enda kontaktandmeid (nimi, telefon, aadress jne). Me jälgime ja analüüsime pakkumisi, et vältida pettuseid ja reeglite rikkumisi.
Rikkumise puhul kasutajakonto blokeeritakse.

 

Teisi töid samas valdkonnas

Valdkonnas "Siseviimistlustööd" on 26 aktiivset tööd

Korteri remont

Asukoht: Harjumaa, Muraste
Aega jäänud: 2p 9h
Tehtud pakkumisi: 15

no-img Pilt puudub

Laminaatparketi paigaldus

Asukoht: Harjumaa, Tallinn
Aega jäänud: 4p 9h
Tehtud pakkumisi: 8

Vanemad teated:

Vaata kõiki

Sellel veebilehel kasutatakse küpsiseid. Kasutamist jätkates nõustute küpsiste kasutamisega.

Sulge
 
Minu pakkumine

Reeglid

Pakkumise kirjelduse väli on mõeldud pakkumise detailsemaks lahti kirjutamiseks. Pikema teksti mugavaks sisestamiseks klikkige kasti paremal ülaservas oleval ikoonil.
Pakkumist tehes on keelatud postitada enda kontaktandmeid (nimi, telefon, aadress jne). Me jälgime ja analüüsime pakkumisi, et vältida pettuseid ja reeglite rikkumisi.
Rikkumise puhul kasutajakonto blokeeritakse.