+ Lisa oma töö      

Hange on lõppenud!

Võitjaks osutus kasutaja ID 1534

Eramaja ehitus

ID 879

3670 vaatamist

Prindi

  • check Pakkumiste tegemine
    kuni 30.04.2006
  • check Võitja valik kuni
    07.05.2006
  • 3 Töö teostamine
    ja hinnang
Hanke lõpp: P, 30. aprill, 2006
Maakond: Lääne-Virumaa
Tööde algus: E, 05. juuni, 2006 (Soovituslik)
Tööde lõpp: N, 30. aprill, 2026 (Soovituslik)
Ehitusmaterjalid: Töö tegija poolt

Töö sisu

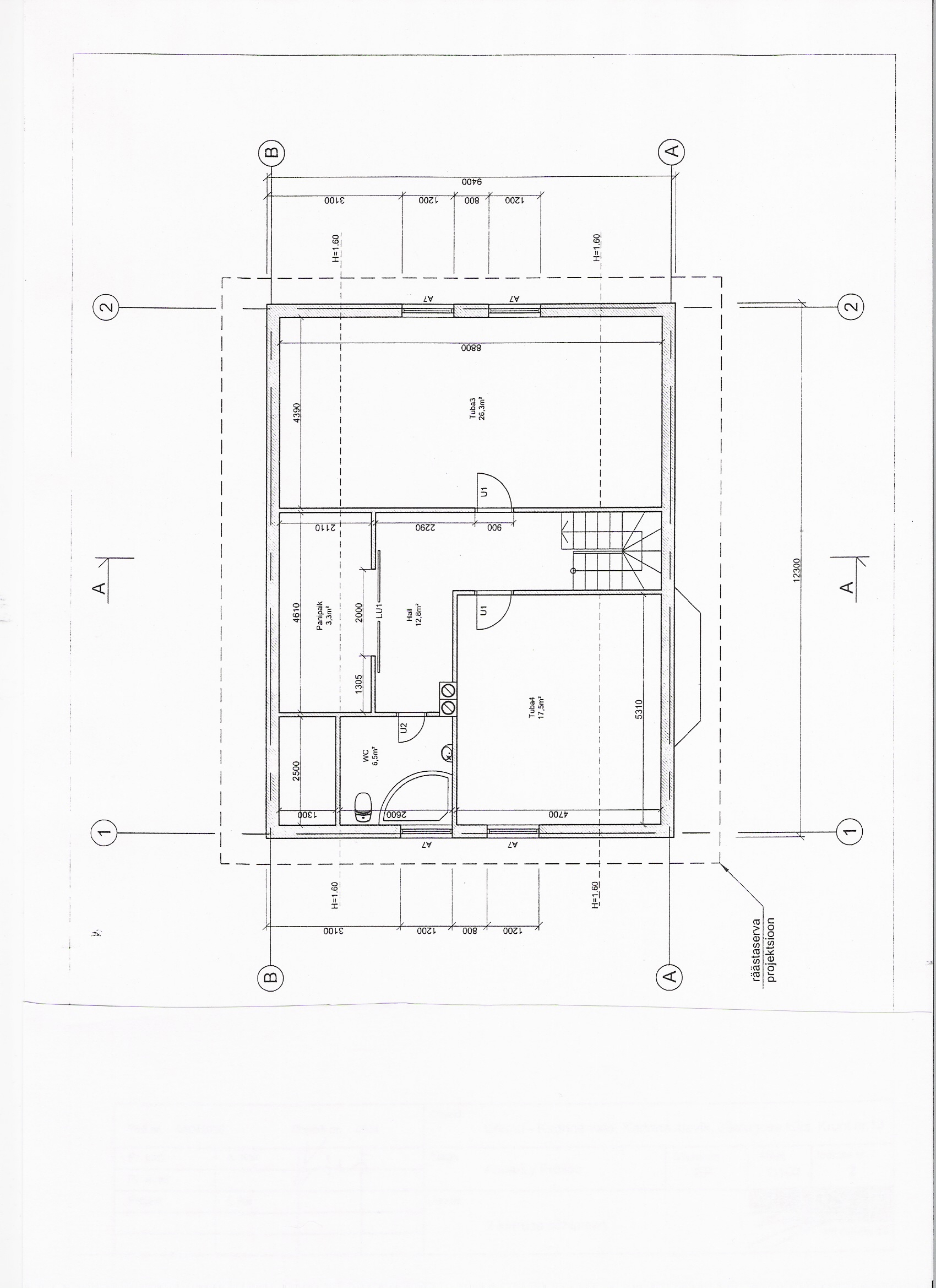
Majakarbi ehitus vundamendist katuseni.Maja 165m2, kaks korrust, Aeroc plokist.

Pildid, video ja failid

Hanke korraldaja: eraisik ID1809

Pakkumised

Pakkumisi kokku: 8

Ettevõte Summa Käibemaks Lisatud Vestlus
Kasutaja ikoon ID1116
Pakkuja profiil Väike nool paremale
102 258,6€ Ei sisalda Ei sisalda 24.04.2006 Vestlus (0)
Kasutaja ikoon ID998
Pakkuja profiil Väike nool paremale
76 694,0€ Sisaldab KM Sisaldab KM 24.04.2006 Vestlus (0)
Kasutaja ikoon ID1450
Pakkuja profiil Väike nool paremale
67 449,4€ Sisaldab KM Sisaldab KM 25.04.2006 Vestlus (0)
Kasutaja ikoon ID1534
Pakkuja profiil Väike nool paremale
57 520,5€ Sisaldab KM Sisaldab KM 25.04.2006 Vestlus (0)
Kasutaja ikoon ID1671
Pakkuja profiil Väike nool paremale
84 363,4€ Ei sisalda Ei sisalda 25.04.2006 Vestlus (0)

Pakkumise kirjeldus:

kiirelt ja korralikult koos materjaliga

Kasutaja ikoon ID481
Pakkuja profiil Väike nool paremale
90 547,2€ Sisaldab KM Sisaldab KM 28.04.2006 Vestlus (0)
Kasutaja ikoon ID118
Pakkuja profiil Väike nool paremale
63 911,7€ Sisaldab KM Sisaldab KM 30.04.2006 Vestlus (0)
Kasutaja ikoon ID989
Pakkuja profiil Väike nool paremale
73 818,0€ Sisaldab KM Sisaldab KM 30.04.2006 Vestlus (0)

Küsimused hanke korraldajale

Küsimus: private ID923   24.04.2006 16:38
täpsema pakkumise esitame hanke võidupukul, kuid ei ületa antud hinda.

Teavita reeglite rikkumisest

Korraldaja vastus:
Hanke korraldaja ei ole küsimusele veel vastanud

Lisa küsimus

Lisa küsimus

Minu pakkumine

Reeglid

Pakkumise kirjelduse väli on mõeldud pakkumise detailsemaks lahti kirjutamiseks. Pikema teksti mugavaks sisestamiseks klikkige kasti paremal ülaservas oleval ikoonil.
Pakkumist tehes on keelatud postitada enda kontaktandmeid (nimi, telefon, aadress jne). Me jälgime ja analüüsime pakkumisi, et vältida pettuseid ja reeglite rikkumisi.
Rikkumise puhul kasutajakonto blokeeritakse.

 

Vanemad teated:

Vaata kõiki

Sellel veebilehel kasutatakse küpsiseid. Kasutamist jätkates nõustute küpsiste kasutamisega.

Sulge
 
Minu pakkumine

Reeglid

Pakkumise kirjelduse väli on mõeldud pakkumise detailsemaks lahti kirjutamiseks. Pikema teksti mugavaks sisestamiseks klikkige kasti paremal ülaservas oleval ikoonil.
Pakkumist tehes on keelatud postitada enda kontaktandmeid (nimi, telefon, aadress jne). Me jälgime ja analüüsime pakkumisi, et vältida pettuseid ja reeglite rikkumisi.
Rikkumise puhul kasutajakonto blokeeritakse.