+ Lisa oma töö      

Otsid ehitajat "Katusetööd" valdkonnast?

Parima pakkumise ja teostaja leidmiseks lisa oma töö.

Hange on lõppenud!

Võitjaks osutus kasutaja ID 9473

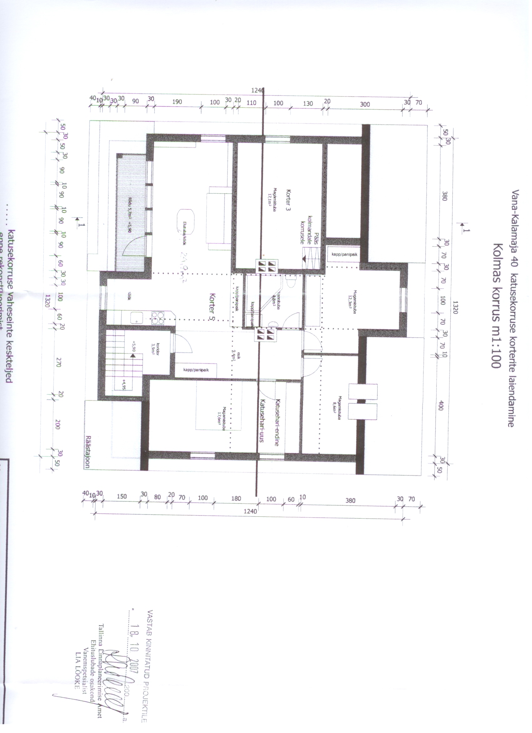
Kortermaja katusekorruse vahetus

ID 9311

4568 vaatamist

Prindi

  • check Pakkumiste tegemine
    kuni 06.08.2008
  • check Võitja valik kuni
    13.08.2008
  • 3 Töö teostamine
    ja hinnang
Hanke lõpp: K, 6. august, 2008
Maakond: Harjumaa
Linn: Tallinn
Tööde algus: R, 15. august, 2008 (Soovituslik)
Tööde lõpp: L, 01. november, 2008 (Soovituslik)
Ehitusmaterjalid: Töö tegija poolt

Töö sisu

Kalamajas väikse, viie koteriga, kortermaja katusekorruse vahetus. Vaja teostada järgnevad tööd:
vana eterniitkatuse ja konstruktsioonide lammutus;
uue konstruktsiooni ning katusekattematerjali (plekk/klassik katus) paigaldus;
korstnate pikendamine (1m);
pööningukorruse otsaseinte viimitlemine voodrilauaga; akendepaigaldus (sh. 3 katuseakent);
Väljavahetatavate sarikate otsad kujundatakse algsete sarikate koopiatena. Puitmaterjali äraveo teostan ise.
Lõpptulemusena soovin, et objekt oleks väljast valmis.

Pildid, video ja failid

Hanke korraldaja: eraisik ID12631

Pakkumised

Pakkumisi kokku: 10

Ettevõte Summa Käibemaks Lisatud Vestlus
Kasutaja ikoon ID12241
Pakkuja profiil Väike nool paremale
38 347,0€ Sisaldab KM Sisaldab KM 24.07.2008 Vestlus (0)
Kasutaja ikoon ID9895
Pakkuja profiil Väike nool paremale
28 760,2€ Ei sisalda Ei sisalda 24.07.2008 Vestlus (0)

Pakkumise kirjeldus:

sisaldab töö, tellingud ja materjalid katusetööd-250000 seina-200000

Kasutaja ikoon ID12190
Pakkuja profiil Väike nool paremale
26 842,9€ Ei sisalda Ei sisalda 24.07.2008 Vestlus (0)
Kasutaja ikoon ID9038
Pakkuja profiil Väike nool paremale
29 079,8€ Ei sisalda Ei sisalda 24.07.2008 Vestlus (0)

Pakkumise kirjeldus:

Selle hinna sisse lisaks hankes nõutud töödele veel:Isover soojustus 2x 100mm, Isover tuuletõke 30mm. Meie firma tegelebki selliste katusekorruste väljaehitamisega. Hetkel lõppemas analoogne projekt Kadriorus. Tehtud töödele garantii 5a. Hind ei tohiks enam muutuda. Hind on arvestatud 255m2 katusele.

Kasutaja ikoon ID10072
Pakkuja profiil Väike nool paremale
21 410,4€ Ikoon kell Ei sisalda Ei sisalda 05.08.2008 Vestlus (0)

Pakkumise kirjeldus:

10 aastat garantiid!

Kasutaja ikoon ID7667
Pakkuja profiil Väike nool paremale
26 139,9€ Sisaldab KM Sisaldab KM 29.07.2008 Vestlus (0)
Kasutaja ikoon ID9700
Pakkuja profiil Väike nool paremale
27 482,0€ Ei sisalda Ei sisalda 02.08.2008 Vestlus (0)
Kasutaja ikoon ID11485
Pakkuja profiil Väike nool paremale
22 107,0€ Ei sisalda Ei sisalda 05.08.2008 Vestlus (0)
Kasutaja ikoon ID8633
Pakkuja profiil Väike nool paremale
26 842,9€ Ei sisalda Ei sisalda 05.08.2008 Vestlus (0)
Kasutaja ikoon ID9473
Pakkuja profiil Väike nool paremale
26 286,5€ Ei sisalda Ei sisalda 05.08.2008 Vestlus (0)

Küsimused hanke korraldajale

Hanke korraldajale ei ole veel küsimusi esitatud.

Lisa küsimus

Lisa küsimus

Minu pakkumine

Reeglid

Pakkumise kirjelduse väli on mõeldud pakkumise detailsemaks lahti kirjutamiseks. Pikema teksti mugavaks sisestamiseks klikkige kasti paremal ülaservas oleval ikoonil.
Pakkumist tehes on keelatud postitada enda kontaktandmeid (nimi, telefon, aadress jne). Me jälgime ja analüüsime pakkumisi, et vältida pettuseid ja reeglite rikkumisi.
Rikkumise puhul kasutajakonto blokeeritakse.

 

Teisi töid samas valdkonnas

Valdkonnas "Katusetööd" on 9 aktiivset tööd

no-img Pilt puudub

Käidava katuse PVC 54m2

Asukoht: Harjumaa, Muraste
Aega jäänud: 4p 8h
Tehtud pakkumisi: 3

Garaaži katuse vahetamine

Asukoht: Harjumaa, Viimsi
Aega jäänud: 13p 8h
Tehtud pakkumisi: 2

Vanemad teated:

Vaata kõiki

Sellel veebilehel kasutatakse küpsiseid. Kasutamist jätkates nõustute küpsiste kasutamisega.

Sulge
 
Minu pakkumine

Reeglid

Pakkumise kirjelduse väli on mõeldud pakkumise detailsemaks lahti kirjutamiseks. Pikema teksti mugavaks sisestamiseks klikkige kasti paremal ülaservas oleval ikoonil.
Pakkumist tehes on keelatud postitada enda kontaktandmeid (nimi, telefon, aadress jne). Me jälgime ja analüüsime pakkumisi, et vältida pettuseid ja reeglite rikkumisi.
Rikkumise puhul kasutajakonto blokeeritakse.